
158方秀雅新中式,實實在在彰顯東方貴氣

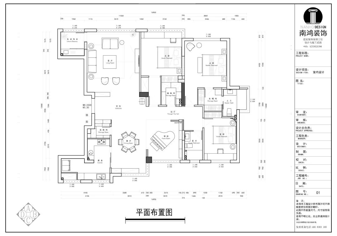
項目信息 / 地址:蘇園 城市:中國 寧波 戶型:四室兩廳 面積:158㎡ 風格:新中式 設計施工:浙江南鴻裝飾 業主夫妻倆都是老師,所謂腹有詩書氣自華,以教書育人為己任的他們在家庭的裝修上也更喜歡端莊沉穩的新中式風格,最能展現濃厚的人文氣質。夫妻倆還有一個活潑可愛的女兒,小女孩有彈鋼琴的習慣,所以新家必須有一個琴房的專屬空間。 / 隱秘、舒適的視覺感受被傳遞到居室的各個地方 讓人在回到家的那一刻 就可以平復浮躁的心情 靜享禪意中式的閑適與安定 #戶型設計 客廳 Living Room 客廳構造傳統中式的圍合式意象 成品家具,同色護墻板搭配山水風硬包 端莊大氣,亦古亦今 設計在解構與留白間 用當代中式的審美視角 重新定義了理想的生活哲學 舒適、悠遠 餐廳 Dining Room 餐廳沿襲客廳的品質與氣質 簡單利落的線條勾勒空間層次 深色木材展現中式的古樸與沉著 廚房 Kitchen 古典優雅的實木板材作廚房主調 搭配淺灰色瓷磚和白色的臺面 簡約素雅、舒適明朗 琴房 Piano Room 琴房是由玻璃隔斷的半開放式空間 西洋三角鋼琴與中式風格很好融合 空間在一開一閉中顯得非常靈活 臥室 Bedroom 主次臥均以沉靜的灰和留白手法 構建起靜謐而儒雅的調性 以當代的思維詮釋傳統中式的意境 在不同藝術形態中表現獨特美學內涵 兒童房 Children's Room 夢幻、飽含童趣的兒臥空間 粉色的點綴表現十足的柔雅 書桌椅置于窗邊 整體明亮又溫馨














免費
免費申請戶型規劃
專屬設計師免費1對1全程服務
已經有3764人申請
24小時免費咨詢電話
400-8800-618
你家預算
108080元