
【印江南】四室改兩室,客廳書房一體,餐廚又玩出了新花樣!

【項目·信息】
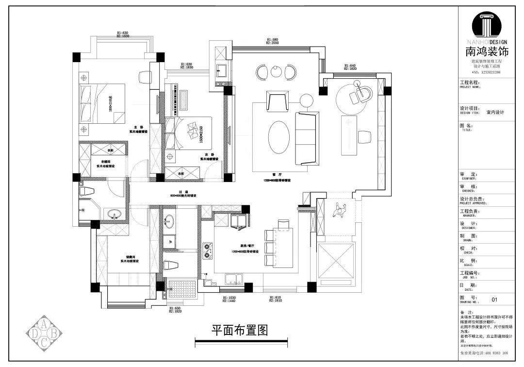
地址 / 保利·印江南
戶型 / 兩室兩廳
面積 / 139㎡
風格 / 現代簡約
設計施工 / 浙江南鴻裝飾
本案的常居人口為2人,女兒一家在同小區。房間不需要那么多,所以原戶型的4室被改為2室,餐廳直接納入廚房的范圍,廚柜連接卡座順勢成為一體,同時移門做成內藏吊軌無框移門,需要時可拉上讓餐廚自成一個世界。原進戶次臥改為開放式書房,空間塊面的視野更加開闊。軟裝上使用了較鮮明的顏色對比,使空間不失層次感和溫馨感。

客廳
LIVING ROOM

公區域選用柔和的淺色調,視覺上顯得更加開闊,軟裝則是適度的深色和亮色,讓空間有了沉著的重心。局部亮黃色的點綴,賦予家跳脫的個性。閑坐在此,感受室外明晃的光線,霎時仿佛能感知到生活的真諦。

電視背景墻以收納的形式呈現,材質、色調的組合加上橫豎線條比例的裁分,展現出具有靈動感的視覺效果。棕色的圓形皮藝茶幾小巧可愛,低調沉靜。



空間的設計與選材上均秉承現代簡約的原則,強調理性而寧靜的室內氛圍,軟性的家具面料柔和提升心靈感受,營造材質與情緒的記憶。
書房
STUDY

書房做敞開,與客廳無縫銜接,整面的收納柜體兼顧場域的舒適度和機能性,正中下方因地制宜地嵌入一個電子壁爐,成為空間一大亮點。



書桌椅的曲線線條中和整體的剛硬感,伴隨著綠葉的點綴,在此簡約設計之中,有一份詩意盎然的生活格調在潺潺流動著~
餐廳
DINING ROOM

客廳望向餐廳,無框移門讓兩塊區域之間既是分隔又能隨時相連,也不會影響采光。


餐廚互通,廚柜順勢延展設計為餐廳的L型卡座,一體成型讓視覺更加流暢,翻了倍的容坐量讓熱鬧的親友歡聚成為這個家隨時可有的景致。
墻面結合藝術涂料和木飾面,左上方嵌入酒柜,再加上暗紅色的餐椅,儼然是家居個性最鮮明的展示。
廚房
KITCHEN

開放式設計,黑白灰的色調、隱藏式把手、利落的線條,廚房顯出匹配外表的精致大氣。
臥室
BEDROOM


主臥墻面用素色的墻布包裹,隨性愜意,床尾連著柜體打造梳妝區,軟裝上多用撞色搭配,空間寧靜而不寡淡。
衛生間
BATHROOM

公衛,過道收納進洗衣機、烘干機,臺上盆提升顏值,淋浴間干濕分離,保證日常使用的舒適度。
上一篇:望江府 | 素色安然,凝練至簡
免費
免費申請戶型規劃
專屬設計師免費1對1全程服務
已經有3778人申請
24小時免費咨詢電話
400-8800-618
你家預算
108080元