
【江南學府】139㎡五居室設計,黑白灰的簡凈之家,真好看~

項目地址:江南學府
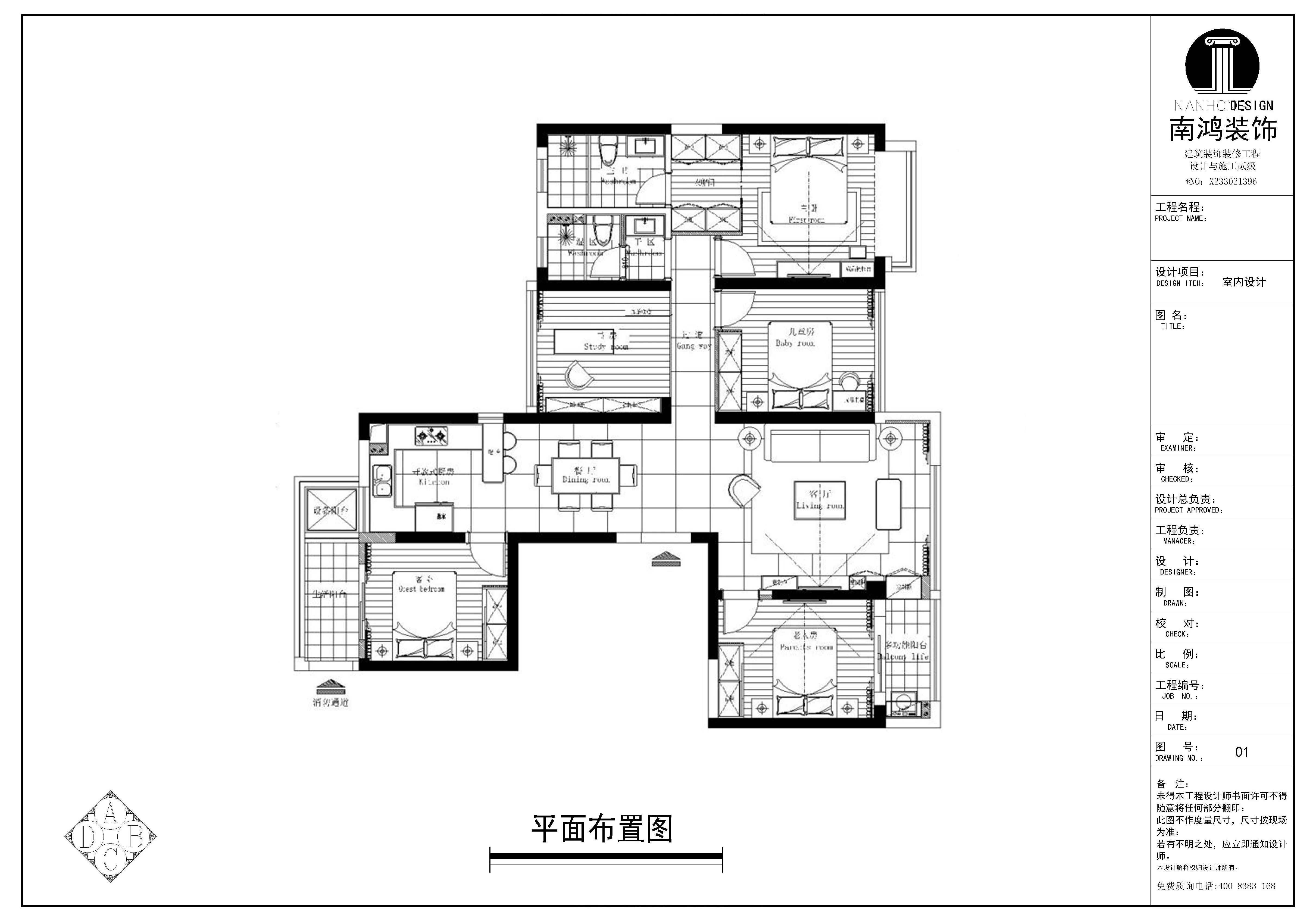
項目戶型:五室兩廳
項目面積:139㎡
設計風格:現代風格
設計施工:浙江南鴻裝飾
本案以成品木飾面、硬包、定制柜為裝飾主導,乳膠漆色彩打底,并以無主燈照明設計來創造一個簡潔的現代空間。在有限的空間中,設計師通過開放式布局改造、動線優化來滿足主人一家的舒適居住需求,平衡空間的美與用。

廚房與餐廳開間較小,受結構因素影響導致動線單一;房間較多導致每塊區域都不大。

廚房:進行開放式改造,考慮到餐廳開間較窄,打開后空間效果會形成互補,且能釋放出客臥動線。
長輩房:在電視背景墻處用平板無縫隱形木門,加強空間的層次性。
書房:打破隔墻,同樣做成一個開放式的空間,讓辦公、彈琴的需求都能得到滿足且不受束縛。


黑白灰三色搭建的明亮客廳空間,純粹干凈,無主燈的設計減輕視覺壓迫,輕透無壓的生活感在簡單的軟裝組合中被娓娓道來。



純色的沙發背景增添木格柵裝飾,收納型電視背景墻解決儲物需求,電視嵌入其中,大大弱化了其存在感。黑白色調以特定比例劃分,呈現舒適的視覺享受。

低調簡約的桌椅搭配,暖黃的燈光,傳達著主人對溫馨家居生活的追求與向往。廚房與餐廳相鄰,開放式的格局增加空間的通透性,讓視線暢通無阻,也能加強家人間的互動和溝通。

書房同樣打開,并用地板做了小小的抬高,在這里可以自由地看書、彈琴,享受生活的樂趣。



主臥以沉靜的灰色營造睡眠氛圍,木飾面組合硬包而成的背景墻簡單而不失層次,燈光由頂至墻有序排布著,光影之間,儒雅氣質自顯~

主臥是包含衣帽間和衛生間的套房,功能齊備,主衛門材質選擇長虹玻璃加黑框邊,添加了點復古的韻味。

長輩房去繁就簡,簡白的色系敘述著空間的溫柔靜美,床頭增添兩盞壁燈,溫暖的光照耀出一方恬淡歲月。

主衛設計,淺色系放大空間,大理石的臺面,以及金屬的把手、柜腳,細節處倍感精致。
免費
免費申請戶型規劃
專屬設計師免費1對1全程服務
已經有3777人申請
24小時免費咨詢電話
400-8800-618
你家預算
108080元