
160㎡現代原木:讓陽光為生活鍍上暖意

項目信息
PROJECT INFORMATION
地址:香檸顏家府
城市:中國·杭州
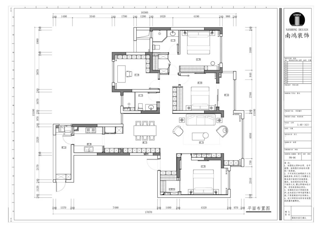
戶型:四室兩廳
面積:160㎡
風格:現代原木
設計團隊:杭州南鴻裝飾 許麗麗
設計單位:浙江南鴻裝飾
施工單位:浙江南鴻裝飾
作品前言 ABOUT HOME 本案以自然格調為設計核心,在滿足母子二人居住需求的同時,呈現出寧靜而舒緩的空間美學。室內引入純粹的自然元素,陽光、木質與空氣溫柔交織,詩意般的時間在此靜默流淌~ 戶型方案 LAYOUT DESIGN 實景呈現 CASE APPRECIATION No.1 玄關 玄關設計在簡約中頗具細節的考量,整體原木色作基底,搭配純白柜門,營造干凈、溫馨的初印象。鞋柜底部留空,方便日常穿脫,也進一步減輕體量感。優雅的結構比例、色塊劃分,使空間美觀又大方。 No.2 客廳 溫暖的材質蘊生溫暖的居所。客廳使用純凈的白色與質樸的橡木色護墻作為基礎,氛圍簡約明凈、松弛自在。電視背景墻采用整體儲物設計,流暢的立面讓視覺干凈平整。 木飾面融合了格柵線條,悄然拉伸層高。家具選配沉穩棕色沙發,與組合式現代茶幾、淺色地毯及單椅,深淺交錯間,層次感得到自然的舒展。 頂部采用無主燈設計,光線均勻漫射,一盞落地燈在角落靜靜鋪開暖光,增強溫馨感。陽臺被包進客廳,視野敞開,圓弧形的埡口也讓居室更顯柔和。 No.3 餐廳 木護墻在餐廳一側繼續延展,另一側純白的儲物餐邊柜則建構起簡潔利落的收納秩序,材質與光線在此疊現出舒緩的韻律。 木質的餐桌椅溫潤樸實,頂部懸落一盞長條燈,干凈分明的線條勾勒一方明亮有序的用餐場域。 餐邊柜以大面積無把手白色柜門,營造出靜謐無華的畫面,中部敞開的操作區置入層板架以及實用的移動插座,兼備日常使用的便利性。 No.4 廚房 廚房采用平行布局,兩側操作臺沿墻面延伸,形成流暢的動線。充足的操作寬度配合白色櫥柜,在提升功能性的同時,更以清爽的色調與簡潔的造型,賦予空間通透敞亮的感受。 No.5 臥室 臥室的氛圍調性與外部公區域保持一致,色彩內斂而穩重的床品、床頭柜與斗柜,散發著安靜好眠的柔和因子,讓空間愈加松弛。 No.6 陽臺 這方陽臺用作休閑與觀景,角落利用掛畫、盆栽,布置出中國風的禪意小景。一把小椅、一方圓幾,可隨需求調整位置,總能找到最舒心的角度~















已經是最后一篇了
免費
免費申請戶型規劃
專屬設計師免費1對1全程服務
已經有3785人申請
24小時免費咨詢電話
400-8800-618
你家預算
108080元