
125㎡恬靜奶油風 | 幸福的滋味,偷偷藏不住

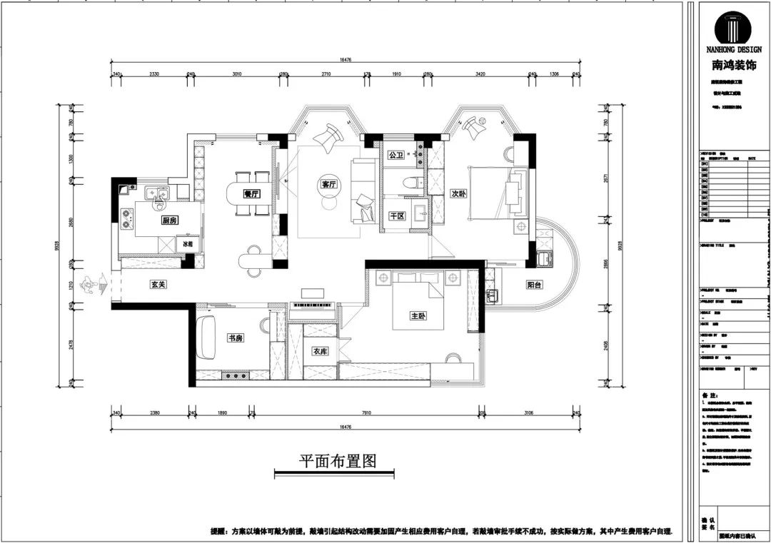
本案這處居所,是一對母女和可愛貓咪共同居住的家。需求比較簡單明確,兩間臥室,主臥帶衣帽間,一間多功能書房,風格就敲定為女孩喜歡的奶油風。整體軟軟糯糯的色調,貼合年輕人的口味,也讓尋常日子瞬間變得鮮活生動、有滋有味。 地址 | 景湖苑 城市 | 中國 杭州 戶型 | 三室兩廳 面積 | 125㎡ 風格 | 奶油風 設計施工 | 浙江南鴻裝飾 原始戶型圖 ▼ 平面方案圖 ▼ - 設計改動 - ①廚房進門更換方向,U型設計提升利用率,相鄰的玄關也能借過道增加鞋柜儲物; ②客餐廳調整位置,增加采光面,提升空間亮度; ③餐區增加展示柜,放置女孩收藏的手辦; ④主次臥調整位置,次臥帶陽臺,方便媽媽洗曬衣物,女兒房隔出了衣帽間,增加儲物。 玄關 Hallway 入戶是一條走廊型的玄關,嵌入式玄關柜妥善解決收納、換鞋的問題,實用大方,隱私性也不錯。 客廳 Living Room 客廳使用奶油白的基調,搭配淺灰色地磚,隨性搭配幾件家具,為居住在其中的人和貓釋放出更多的活動區域。空間明亮大方,素樸卻也溫柔。 另一側放置有女孩平時要彈奏的鋼琴,用簡約的色塊和造型打造層次。空間擁有利落灑脫的硬裝線條,奶油的色調則增添了醇厚的韻味和恬淡的氣質。 電視背景墻的半墻設計,令客廳與餐廳保持互通,擴大了采光面,視覺上變得更加通透。弧形小埡口,則增添了靈動和俏皮。 餐廳 Dining Room 平凡日子的柴米油鹽,最后都化為了治愈人心的小確幸。 餐桌椅與背景墻形成T字擺放,高效節省空間。一側做嵌入式餐邊柜,大大提升實用性。 女孩喜歡收藏手辦,因此設計師在餐廳位置設計了專門的玻璃柜搭配燈光展示,視覺上能自然地裝飾空間,方便觀賞的同時也防止了落灰。貼近展示柜還設計了一個小吧臺,巧妙地劃分空間,格調也得到提升。 廚房 Kitchen 廚房采用u字型布局提升使用效率,烹飪區、操作臺和洗滌區分工明確,互不干擾,動線簡明流暢。 臥室 Bedroom 兩間臥室用清淡柔和的外觀,包容著主人美好的生活愿景,簡約的空間形體釋放出淡淡的優雅,構筑靈魂休憩之所。 書房 Study 多功能書房空間,平常可用于辦公、讀書、午休等,適量的儲物區幫助維持日常整潔。 衛生間 Bathroom 衛浴干區選用原木色的臺盆柜和鏡柜,實現美觀和實用的雙重安放,并做玻璃磚半墻設計,巧妙地使空間保持了通透明亮。


















免費
免費申請戶型規劃
專屬設計師免費1對1全程服務
已經有3777人申請
24小時免費咨詢電話
400-8800-618
你家預算
108080元